Sitzungssaal 2

Bericht über die Gemeinderatssitzung vom 24.05.2022

27.05.2022: Sitzungsprotokoll als PDF-Datei
aktuell_markt_buergstadt.png

Einladung zur Informationsveranstaltung zum Verfahrensstand "Hintere Erf - Hundsrück-Terrassen"

24.05.2022: Mittwoch, 01.06.2022 um 19.00 Uhr im Großen Saal des Bürgerzentrums Mittelmühle
shield

Vollsperrung der Miltenberger Straße wegen Oberflächensanierungsarbeiten

24.05.2022: Wir bitten um Beachtung!
Bushaltestelle.jpg

Vorübergehende Sperrung der Bushaltestelle Miltenberger Straße

10.05.2022: Wir bitten um Beachtung!
Ortsansicht Luft.JPG

Einladung zur IdeenWerkstatt Bürgstadt

04.05.2022: Einladung an alle Bürgerinnen und Bürger zur IdeenWerkstatt Bürgstadt am Donnerstag, 12.05.2022 um 19 Uhr
Sitzungssaal 2

Bericht über die Gemeinderatssitzung vom 26.04.2022

29.04.2022: Sitzungsprotokoll als PDF-Datei
ukraine mit wappen.jpg

Informationen zur Flüchtlingshilfe

27.04.2022: Der Markt Bürgstadt informiert
Sitzungssaal 2

Bericht über die Gemeinderatssitzung vom 05.04.2022

08.04.2022: Sitzungsprotokoll als PDF-Datei
Steuern.jpg

Änderung der Grundsteuer ab 2025

01.04.2022: Grundsteuerreform - Die neue Grundsteuer in Bayern
Sitzungssaal 2

Bericht über die Gemeinderatssitzung vom 15.03.2022

18.03.2022: Sitzungsprotokoll als PDF-Datei
höckerlein - BEARBEITET.jpg

Bauarbeiter und Baumaschinen verlassen das „Höckerlein“

15.03.2022: Der Markt Bürgstadt informiert!
schule zwischenst jahnstr - BEARBEITET.jpg

Bürgstadter Schulerweiterung schreitet voran

15.03.2022: Der Markt Bürgstadt informiert!
rj45

Glasfaserausbau in Bürgstadt

15.03.2022: Der Markt Bürgstadt informiert!
aktuell_markt_buergstadt.png

Josefsmarkt am Sonntag, 20.03.2022 entfällt

04.03.2022: Wir bitten um Beachtung!
shield

Sperrung der Ortsdurchfahrt Bürgstadt am 03.03.2022

25.02.2022: Wir bitten um Beachtung!
Sitzungssaal 2

Bericht über die Gemeinderatssitzung vom 22.02.2022

25.02.2022: Sitzungsprotokoll als PDF-Datei
shield

Oberflächensanierungsarbeiten in der Miltenberger Straße

22.02.2022: Wir bitten um Beachtung!
Sitzungssaal 2

Bericht über die Gemeinderatssitzung vom 01.02.2022

04.02.2022: Sitzungsprotokoll als PDF-Datei
Ortsansicht Luft.JPG

Ideenwerkstatt Bürgstadt

01.02.2022: Wir freuen uns auf Ihre Ideen!
aktuell_markt_buergstadt.png

Baugebiet Buschenweg - Durchführung von vorbereitenden Landschaftspflegemaßnahmen

31.01.2022: Der Markt Bürgstadt informiert!
Corona-Virus Grafik.jpg

Corona-Schnellteststelle in Bürgstadt

31.01.2022: Wir bitten um Beachtung
aktuell_markt_buergstadt.png

Statistische Daten aus den gemeindlichen Einrichtungen

24.01.2022: Der Markt Bürgstadt informiert
Sitzungssaal 2

Bericht über die Gemeinderatssitzung vom 18.01.2022

21.01.2022: Sitzungsprotokoll als PDF-Datei
aktuell_markt_buergstadt.png

Neujahrsgrüße des Bürgermeisters

05.01.2022: Grußworte des 1. Bürgermeisters Thomas Grün zum neuen Jahr 2022
Planteil Buschenweg Bild.jpg

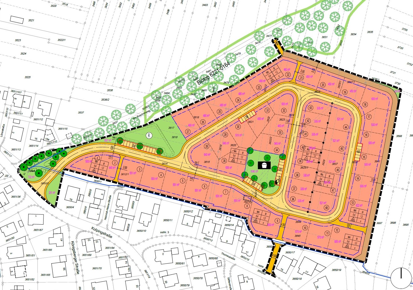
Bebauungsplan "Buschenweg" - Bekanntmachung des Satzungsbeschlusses und Rechtskraft des Bebauungsplanes

21.12.2021: Der Markt Bürgstadt informiert
Sitzungssaal 2

Bericht über die Gemeinderatssitzung vom 07.12.2021

10.12.2021: Sitzungsprotokoll als PDF-Datei
Sitzungssaal 2

Bericht über die Gemeinderatssitzung vom 16.11.2021

19.11.2021: Sitzungsprotokoll als PDF-Datei
aktuell_markt_buergstadt abgesagt.png

Einladung zur Bürgerversammlung

14.11.2021: Donnerstag, 25. November 2021 um 19:30 Uhr im Foyer des Bürgerzentrums Mittelmühle
aktuell_markt_buergstadt abgesagt.png

Absage der Informationsveranstaltung Hundsrückterrassen und Bürgerversammlung

11.11.2021: Absage der Termine von 24.11.2021 und 25.11.2021 - Wir bitten um Beachtung!
Hundsrückterrasse 2G + FFP2 abgesagt II.jpg

Einladung zur Informationsveranstaltung zum Verfahrensstand "Hintere Erf - Hundsrück-Terrassen"

02.11.2021: Mittwoch, 24.11.2021 um 19.00 Uhr im Bürgerzentrum Mittelmühle. Bei der Veranstaltung gilt die 2G-Regel, sowie Maskenpflicht.
Mehr Meldungen laden